
Pressure Regulating & Metering System
1. What it is
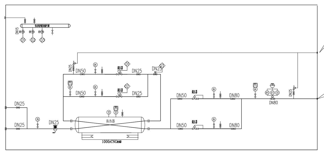
A gas pressure regulating and metering (PRMS) solution designed to control gas pressure, measure flow accurately, and ensure safe and stable gas delivery to downstream systems.
2. What problem it solves
Natural gas from transmission pipelines or upstream facilities often operates at pressures that are unsuitable for end users.
Without proper pressure regulation and accurate metering, gas systems may face safety risks, operational instability, and billing inaccuracies. PRMS provides controlled pressure reduction and precise measurement to ensure safe and reliable gas utilization.
3. Our scope
Glory Gas delivers engineered PRMS solutions covering:
• Pressure regulating and pressure reduction systems
• Gas flow metering and measurement units
• Safety shut-off and overpressure protection systems
• Filtration and gas conditioning components
• Instrumentation, control, and monitoring systems
• System integration and technical support
4. Typical applications
• City gas distribution networks
• Industrial gas supply systems
• LNG regasification and gas receiving stations
• Pipeline inlet and outlet stations
5. Key advantages
• Stable pressure control: Ensures safe and consistent gas delivery under varying load conditions
• Accurate metering: Supports reliable measurement and operational transparency
• Safety-oriented design: Multiple protection layers to meet international standards
• Flexible integration: Easily integrated into new projects or existing gas systems
