
Pressure Regulating & Metering Station (PRMS )
1.Product Overview
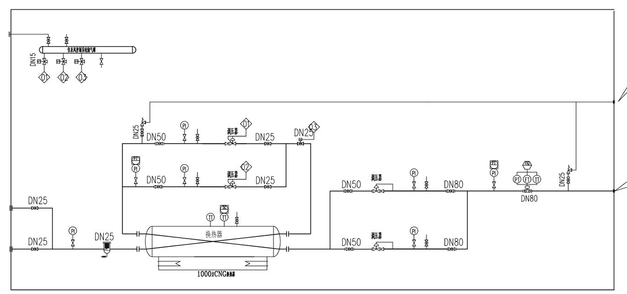
The PRMS (Pressure Regulating & Metering Station) is an integrated system designed to reduce, control, and accurately measure natural gas pressure and flow before distribution to downstream users or networks. It ensures stable outlet pressure, precise gas metering, and safe operation under varying inlet conditions, making it a critical interface between transmission pipelines and distribution systems.
2.Working Principle
Natural gas enters the PRMS from the upstream pipeline at high pressure and passes through filtration and safety protection components. The gas pressure is then reduced to the required downstream level by pressure regulators operating in duty/standby or parallel configurations. Flow measurement devices continuously monitor gas volume, while safety valves and shut-off systems protect the station from overpressure or abnormal conditions. Metering and control signals can be transmitted to a SCADA system for remote monitoring and management.

3.Key Features
• Integrated pressure regulation and gas metering in one compact station
• Stable outlet pressure control under fluctuating inlet conditions
• High-accuracy flow measurement for custody transfer or operational monitoring
• Multiple safety layers including slam-shut valves and relief systems
• Modular design suitable for skid-mounted or containerized installation
• Compatible with SCADA systems for remote monitoring and data acquisition
4.Typical Applications
• City gas distribution networks
• Industrial and commercial gas supply systems
• Power plants and large gas consumers
• LNG regasification and CNG station downstream pressure control

Contact: Mr.Max
Phone: +86 19940882909
E-mail: export@glorygas.cn
Whatsapp:+86 19940882909
Add: No. 502, 5th Floor, Unit 3, Building 1, No. 1700, North Tianfu Avenue, High-tech Zone, Chengdu, China